Agencement

MEUBLES D'ENVERGURE SUR-MESURE

Le terrazzo est un matériau qui nécessite des solutions particulières d'assemblage, d'ajustage et de finition.
Nous avons intégré dans notre entreprise un bureau d'étude qui va prendre en charge la conception d'un ouvrage avec des éléments en terrazzo. Il doit travailler en partenariat avec les concepteurs afin qu'ils intègrent les contraintes de notre matériau dans l'élaboration d'un projet.

Nos plans techniques d'exécution incluent souvent la réalisation de structures métalliques porteuses permettant d'assembler les éléments tout en rendant plus facile l'assemblage des pièces sur le chantier. Nous sommes aussi capables d'apporter des solutions d'assistance à la pose de ces structures.

DE LA CONCEPTION À LA RÉALISATION : Des éléments préfabriqués pour une pose optimisée

AMÉNAGEMENT EXTÉRIEUR - BANQUE D'ACCUEIL - PLAN DE TRAVAIL - MEUBLES - BANCS

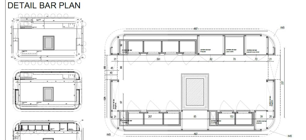
Agencement Agencement Agencement Agencement Agencement

1. L'ÉTUDE DE PRIX

Pour réaliser celle-ci nous n'avons besoin que des plans du concepteur afin que nous puissions imaginer et chiffrer les solutions constructives.

2. La réalisation des plans du Bureau d'étude

Si le projet se concrétise et après commande du chantier sur la base du devis, notre bureau d'étude réalise des plans de détail d'exécution, qui seront transmis après validation à l'atelier de production.

3. La production dans nos ateliers

Nos ingénieurs, métalliers et artisans du terrazzo conçoivent et façonnent chaque pièce, de la découpe aux finitions réalisées à la main. Chaque étape fait l'objet d'un travail minutieux, où précision et coordination sont essentielles à la création de la structure en terrazzo. Les supports métalliques sont pensés en amont afin de permettre, lorsque la structure est imposante, une fabrication en blocs, facilitant ainsi la livraison et la mise en œuvre sur chantier.

4. La pose sur chantier

AdLucem Création travaille en partenariat avec des entreprises spécialisées qui peuvent vous apporter l'assistance nécessaire à la pose sur vos chantiers. Raccords, et pose ont été pensé pour être facilité.

5. Livraison du chantier

La préfabrication en atelier permet d'optimiser la pose et de raccourcir les délais.

Agencement Agencement Agencement Agencement Agencement
Projet meuble terrazzo 1
Projet meuble terrazzo 2
Projet meuble terrazzo 3
Projet meuble terrazzo 4
Métallerie INCUS Soudure structure
Structure métallique terrazzo

Maîtrisé la structure

INCUS : Notre métallerie intégrée

Ces pièces architecturales exigent une parfaite maîtrise des interfaces entre les différents métiers, matériaux et contraintes de mise en œuvre.

Créer notre métallerie en interne nous permet de maîtriser pleinement ce point clé du processus de fabrication.
La métallerie INCUS est un véritable atout.
Chaque jour, Bruno & Nunzio forgent, découpent, soudent, plient et forment tôles, tubes et structures, en parfaite adéquation avec notre terrazzo et nos méthodes de fabrication.

Cette méthodologie propre, et l'internalisation de ces savoir-faire d'exception permet à notre bureau d'étude d'anticiper et de coordonner l'ensemble des contraintes liées au sol, à la structure porteuse, l'habillage en terrazzo, et aux éléments fonctionnels intégrés.

C'est cette maîtrise globale transforme un meuble en élément architectural, à la fois technique, esthétique et rapidement mise en œuvre sur chantier.